Waltham Abbey, Essex, EN9

A 1 Bedroom Industrial For Sale in Essex

Asking Price, £850,000

  • • Sectional Loading Door
  • • Generous Forecourt With Good Loading Facilities
  • • 4 Parking Spaces Available
  • • VAT Applicable
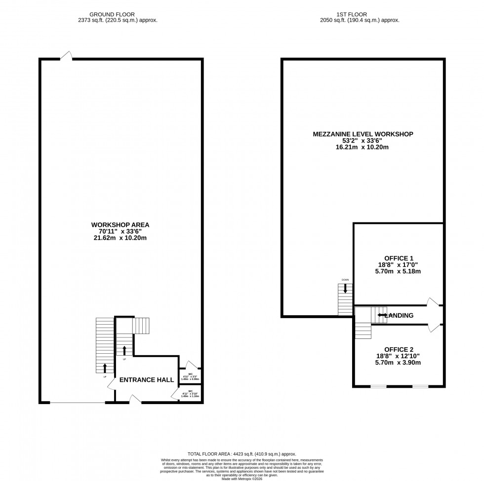
The property comprises a modern mid-terrace industrial/warehouse unit constructed approximately 15 years ago. The building is of steel portal frame construction with profile steel cladding elevations beneath a pitched steel-clad roof incorporating translucent roof lights.

Internally, the accommodation is arranged to provide open-plan warehouse/storage space at ground floor level, together with a substantial first-floor office. This in turn provides access to a mezzanine level, offering additional storage capacity.

Meridian Business Park is situated on the southern side of Waltham Abbey, accessed via Fleming Road, a small service road directly off the A121. The A121 provides excellent connectivity to both the A10 and the M25 motorway network. Junction 26 of the M25 lies approximately 2 miles to the east, with Junction 25 approximately 2 miles to the west.

Waltham Cross mainline station is located approximately 3 miles to the west, providing regular services to London Liverpool Street (via Tottenham Hale) and Cambridge.

Please note the sale price is plus VAT
Floorplan for Waltham Abbey, Essex