Waltham Abbey, Essex, EN9

A 3 Bedroom Detached Bungalow For Sale in Essex

Asking Price, £800,000

  • • 1.33 acre plot size
  • • 1317 sq ft 3 bedroom bungalow
  • • 990 sq ft of Kennel Space
  • • Solar Panels
  • • Air Source Heat Pump
  • • On-Site grooming parlour
  • • No Boarding Licence in Place
  • • 4000 Gallon Cesspit
  • • Private Borehole
  • • EPC 69C / Council Tax Band A
Set within a generous plot of approximately 1.33 acres, this unique property offers an excellent opportunity for buyers seeking a versatile home and business setup in a peaceful semi-rural location.

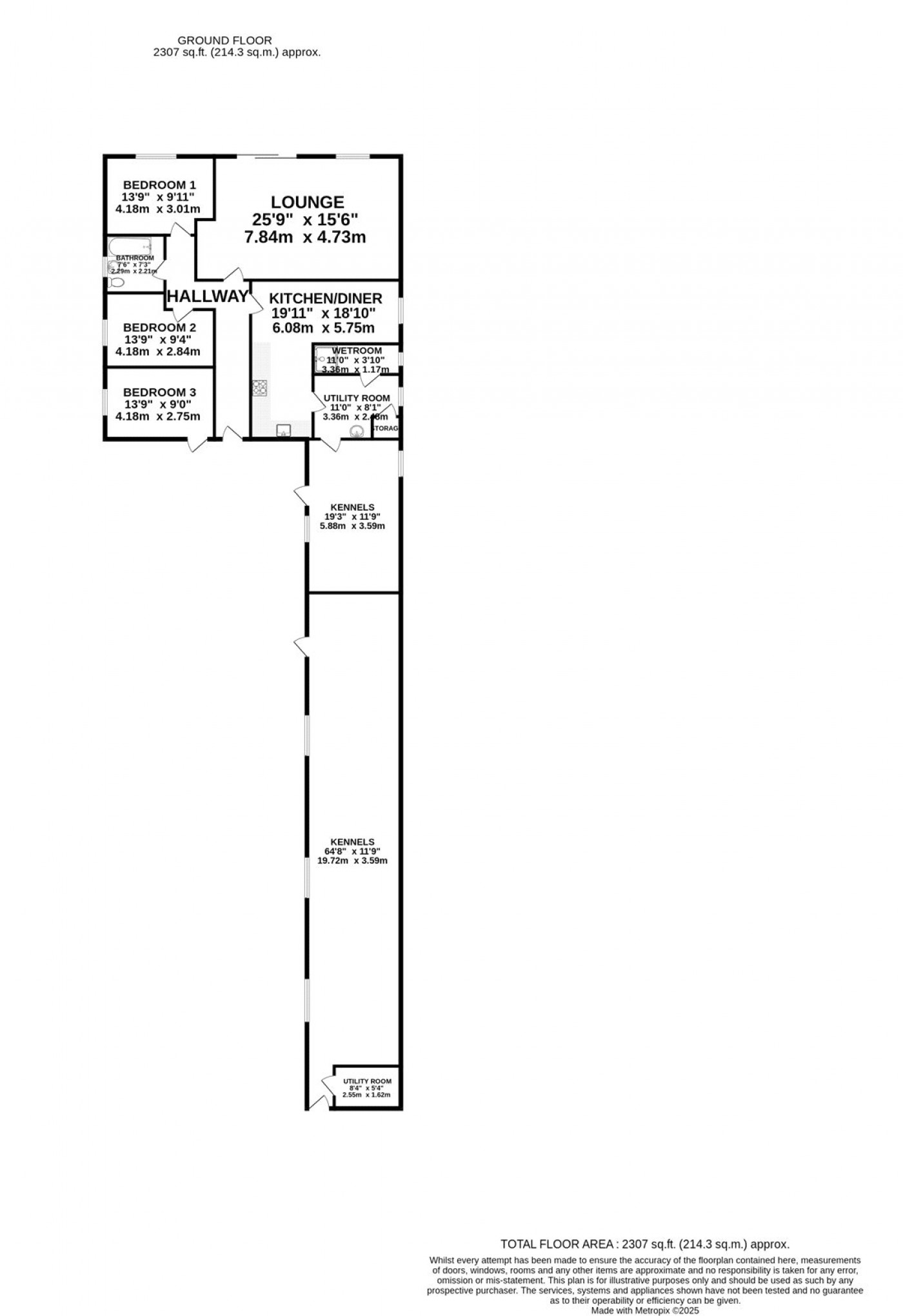
The site includes a well-proportioned three bedroom detached bungalow measuring around 1317 square feet. The home is supported by modern eco-friendly additions including solar panels and an air source heat pump.

To the front is a substantial kennel facility of roughly 990 square feet. There are currently 12 kennels in place, with clear scope to increase capacity subject to any required permissions. A grooming parlour is also situated on site, making this an ideal purchase for those looking to develop or expand a canine-related business. Please note that there is no boarding licence currently in place.

Further features include off street parking for up to five vehicles, a 4000 gallon cesspit and a private borehole, providing valuable infrastructure for the site.

Set within attractive surroundings and offering significant potential, 7 Claverhambury Kennels presents a rare opportunity in this sought-after part of Waltham Abbey.
Floorplan for Waltham Abbey, Essex
EPC Graph for Waltham Abbey, Essex


Similar Properties

Waltham Abbey, Essex

NEW Waltham Abbey, Essex
£800,000