Sun Street, Waltham Abbey, Essex, EN9

A Retail To Let in Waltham Abbey

£24,000 PA

  • • Fully Fitted Kitchen/Cafe
  • • Fully Refurbished
  • • Modern Decor
  • • Well-Presented
  • • Alcohol License
  • • Sought After Location
  • • Outside High Street Seating
  • • Contact Us Now!
Duncan Phillips are pleased to present this great opportunity to rent a recently refurbished café/coffee shop, offering well presented modern decor and fixtures and fittings.

Situated on the main pedestrian throughfare in the thriving market town of Waltham Abbey. The idyllic hamlet is purported to be the King Harold II last resting place after the Battle of Hastings. With the historic Abbey dating back to the middle ages, the premises is sought after and is ideally suited for a eatery.

Lease Terms:
6 Year Lease Term
£24,000 pa for years 1-2
£27,000 pa for years 3-4
£30,000 pa for years 5-6
VAT Applicable

Three months rent in advance
Three month deposit
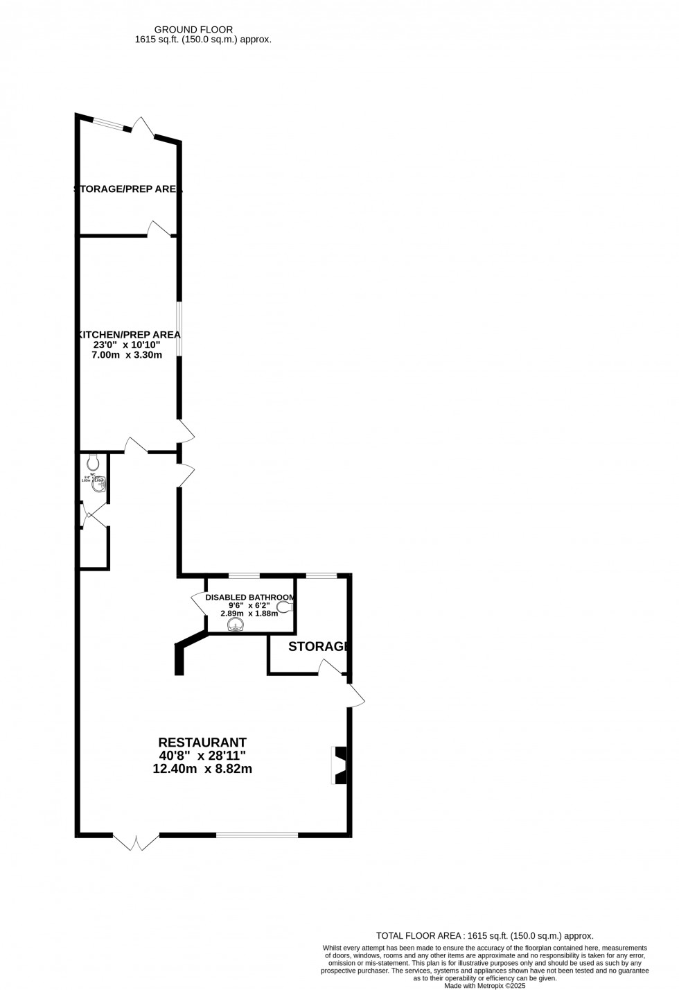
Floorplan for Sun Street, Waltham Abbey, Essex