London, E11

A Retail Let Agreed in

£850 PCM

  • • Prominent High Street Position
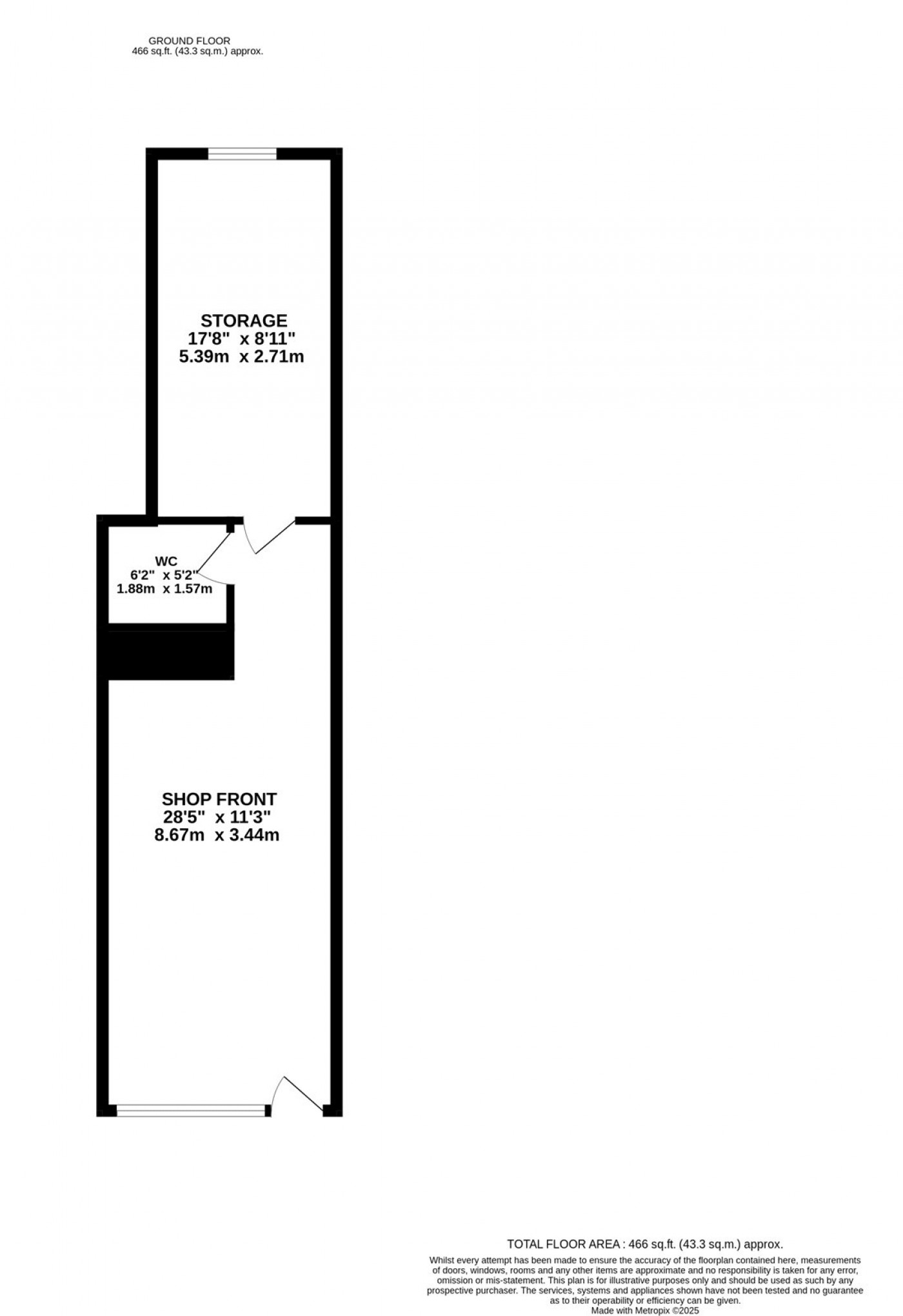
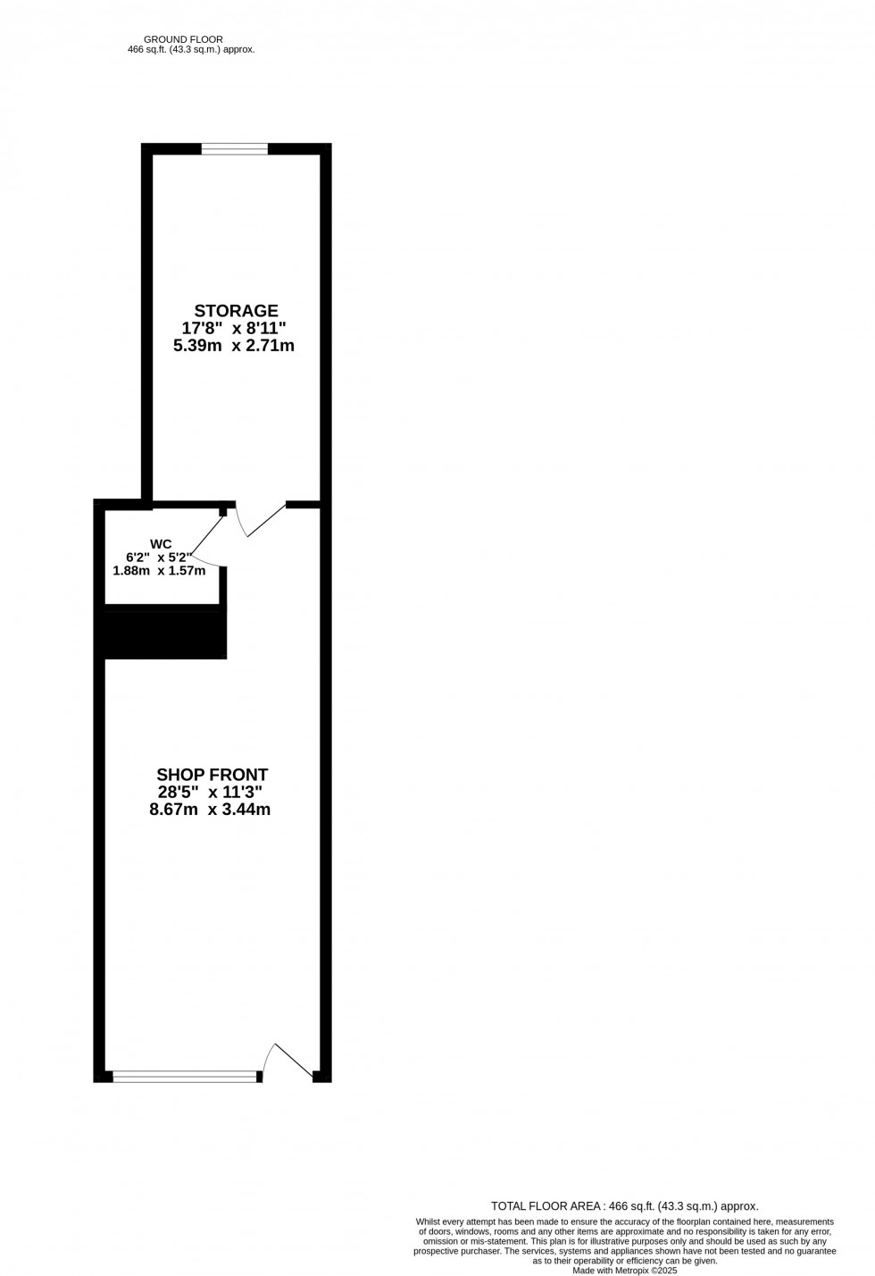
  • • Approx 466 sq ft
  • • Good Footfall
  • • Exscellent Transport Links
  • • Electric Roller Shutter
A well presented commercial unit measuring approximately 466 sq ft, positioned in a prime spot on Wanstead High Street.

This self contained premises offers an ideal base for a variety of businesses. The space is arranged across one level with good natural light, practical layout options and excellent visibility from the High Street. Suitable for office use, professional services, boutique retail or similar operators looking for a highly accessible and vibrant location.

Wanstead High Street is one of East London’s most popular village style centres, known for its strong community feel, busy cafés, well regarded restaurants and independent shops. Wanstead Station (Central Line) is within a short walk offering quick links into Central London. The area benefits from steady daytime and evening activity, strong demographics and a stable local customer base.

This unit provides a great opportunity for a business looking to establish itself in a sought after part of Wanstead with consistent passing trade and strong local demand.

Contact us now to avoid missing out!
Floorplan for London